NANCY 54
L’immeuble construit dans les années 70 dans l’hypercentre de Nancy, sans grande qualité architecturale est cependant situé dans une zone classée « site patrimonial remarquable ». La rue est calme et les pièces de vie ouvrent la vue sur des jardins privés. L’orientation Sud-Ouest / Nord-Est, et l’architecture traversante permet des arrivées de lumière naturelle à toutes les heures de la journée.
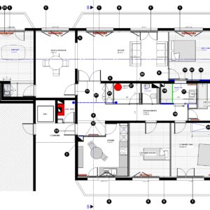
L’appartement d’une surface de 150m² a subit quelques aménagements mineurs. La vision première est un espace intérieur encore « dans son jus ». Fenêtres dépareillées, volets roulants mécaniques en bois, portes intérieures en bois exotique et quincaillerie « alu ton or ».
L’espace concentre trois contraintes majeures :
- Le caractère patrimonial de la zone urbaine
- Le règlement de copropriété.
- Le mode constructif : la plupart des cloisons de distribution sont en béton armé.
L’architecture et les goûts du client me font opter pour un dessin sobre et une palette de couleurs dorées rehaussés par quelques choix de papiers peints aux motifs affirmés. La reprise des lots techniques (électricité, plomberie/chauffage) a nécessité beaucoup d’astuce et une coopération active des entreprises afin que tout cela reste invisible. Une architecture intérieure sans ostentation pour des finitions de très haute qualité.
Chantier comprenant : déposes, plâtrerie, électricité, plomberie-chauffage, ventilation, peintures-papiers peints, menuiseries intérieures, agencements, parquets, menuiseries extérieures, carrelages
Prestation d’architecture intérieure : relevés, esquisses, avant-projet, mood-boards, consultation d’entreprises, déclaration préalable, assistance aux marchés de travaux, suivi de chantier et réception des travaux.
Diaporama
- un appartement traversant idéalement orienté
- faire vivre l’entrée en lui apportant la lumière de la cuisine
- une entrée repensée en détail
- détail entrée
- communication visuelle entre cuisine et entrée
- cuisine (détail)
- cuisine (ouvrir quelques perspectives)
- cuisine (détail)
- une petite salle de bains qui communique avec la chambre
- le séjour, une pièce à vivre qui ose s’affirmer
- les menuiseries affleurantes Garofoli pour un passage élégant
- chambre parentale
- chambre parentale
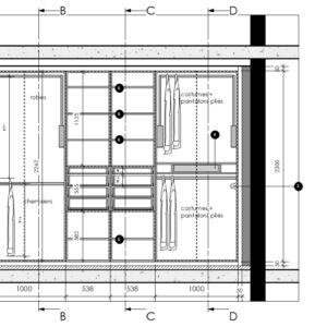
- dressing chambre parentale
- un dressing sur-mesure
- dressing chambre parentale
- détail dressing
- détail portes plaquées chêne
- détail liaison parquet-travertin
- appui de fenêtre en résine
- détail sabot de plinthe
Avant / Après





















